
We provide full measured survey information for Architects and directly assist in design and applications to the Local Planning Authority.

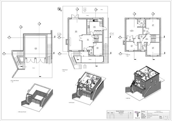
We measure on-site using industry standard techniques and deliver in Revit .rvt and .pdf file formats.

We work with Structural Engineers to analyse and present the existing structure and assist with recommendations and solutions.

Plans are extracted from the Revit model and presented in a standardised 2D paper plot format for discussion with Clients.

Accurate measured information is needed for structural analysis. A Structural Engineer will need to provide calculations for Building Regulations Approval for most structural alterations. Our models help clarify this information, saving on assumptions and unnecessary delay during the construction stage.

We generate elevations directly from the Revit model. An Architect can adapt and present these existing elevations in accordance with their own specification and style.

These plans are needed to support planning applications. If required, our Revit model will incorporate plans at 1:1250 and 1:500 scales.
Copyright © 2025 TOLLET.UK Ltd, CAVERSHAM